Project Description
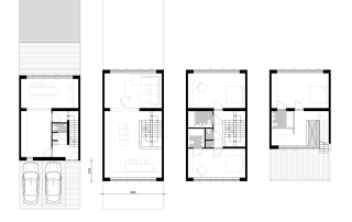
Woningcorporatie “de Key” biedt de mogelijkheid aan particulieren zelf hun woning te bouwen in IJburg in blok 59. Ter inspiratie staan op de site www.zelfbouwblok59 een aantal inspirerende voorbeelden, waaronder dit ontwerp. Loftwonen op IJburg. Boven een begane grondverdieping met een netto hoogte van 2,65m, die te gebruiken is als praktijkruimte, maar ook een aanvulling kan zijn op het woonprogramma, bevinden zich in dit ontwerp drie verdiepingen met een netto hoogte van 3,70m. in combinatie met de royale breedte van
6,6m van dit kavel ontstaat hierdoor een extreem gevoel van ruimte.


