Project Description
Woonhuis entreegebied, Amsterdam-Noord (inzending inspiratieboek 2015)
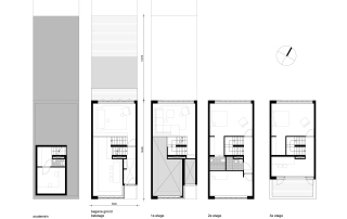
Een halve souterrainverdieping maakt ruimte om, binnen de toegestane hoogte, een klassieke bel-etage te maken. Doordat deze verdieping een halve verdieping is verhoogd, is er privacy maar toch contact met de straat. Door de achterste helft van de woning wel op maaiveldniveau te situeren ontstaan er van de ene verdieping naar de andere mooie doorkijken. Door een vouwwand op de beletage aan de voorkant te maken, krijgt de – op het zuiden gelegen- keuken de kwaliteit van een terras. De materiaalkeuze is gericht op minimale onderhoudskosten in de toekomst, en heeft een chique uitstraling.

